
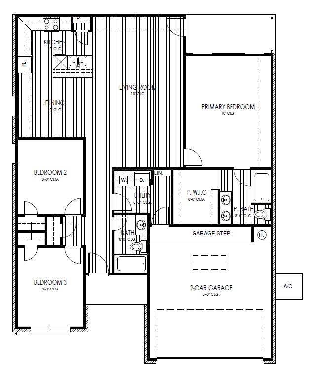
Welcome to this inviting 3-bedroom, 2-bathroom home offering 1,458 square feet of comfortable, well-designed living spaceideal for anyone seeking a friendly, serene neighborhood. Step inside to find a spacious living area enhanced with elevated ceilings in the living areas & primary bedroom. The kitchen features modern stainless-steel appliances and custom cabinetry, making everyday cooking effortless and enjoyable. Stylish luxury vinyl plank flooring runs throughout the living areas, delivering the warmth of hardwood without the upkeep. Each bedroom is spacious and the programmable thermostat allows for easy climate control to suit your lifestyle. Outside, the home boasts 4 sides brick construction for added durability and curb appeal. The yard is fully sodded and landscaped, so you can enjoy a beautiful, low-maintenance outdoor space from the moment you move in. A high-efficiency HVAC system keeps utility bills in check. Tech-forward homeowners will appreciate the tankless water heater that offers endless hot water & an EV charger offering an easy path to energy efficiency. A 10-year structural warranty adds peace of mind, and access to scenic neighborhood views just steps from your door. Blending thoughtful upgrades with everyday functionality, this well-crafted home is perfect for entertaining, relaxing, or simply enjoying life in a welcoming community.
| MLS # | 1197727 |
|---|---|
| Listing Type | For Sale |
| Style | House |
| HOA Dues | $350 |
| Sub-Type | Resale |
| Status | Active |
| Year | 2025 |
| Days On Site | 16 |
| Listing Provided By | Central OK Real Estate Group | John Burris |
| Bed(s) | 3 |
|---|---|
| Bath(s) | 2 Total |
| SQ Feet | 1,458 |
| Garage | 2 |
| Acreage | 0.18 |
| State | OK |
|---|---|
| County | McClain |
| City | Newcastle |
| Zip Code | 73065 |
| School District | McClain |
| School District | Newcastle |
| Elementary School | Newcastle ES |
| High School | Newcastle HS |
| Listing VS Median (in 73065) | |
Price: $281,270 low | high Med: $294,725 sqft: 1,458 low | high Med: 1,995 $ / sqft: $193 low | high Med: $150 On site: 16 low | high Med: 123.500000 | |
| State | OK |
|---|---|
| County | McClain |
| City | Newcastle |
| Zip Code | 73065 |
| School District | McClain |
| School District | Newcastle |
| Elementary School | Newcastle ES |
| High School | Newcastle HS |
| Listing VS Median (in 73065) | |
Price: $281,270 low | high Med: $294,725 sqft: 1,458 low | high Med: 1,995 $ / sqft: $193 low | high Med: $150 On site: 16 low | high Med: 123.500000 | |